Taller de Arquitectura 5 (ARQ 510)Docentes: Yair Estay y Fabiola González
Alteraciones 💾️
«Precisamente, las prácticas de apropiación y transformación de las viviendas se consideran un hecho característico de la movilidad social de los sectores medios, el cual está íntimamente asociado a un interés por una construcción de identidad que especifica una particular estrategia de enclasamiento»
Solís, José. 2016, Ideología neoliberal del Santiago post metropolitano (paisajes del cotidiano
domestico). Mal de Proyecto. 2016
¿Las necesidades domésticas de la clase media están forzando a la redefinición y a la expansión de la vivienda, poniendo en crisis a la tipología y su contexto?
¿Cuáles podrían ser las estrategias proyectuales arquitectónicas para concebir una nueva definición del habitar para la clase media contemporánea chilena?
Propiedad, comunidad, derecho, ocupación, trabajo, salud, infancia, arraigo y proyección son algunas de las problemáticas y necesidades que enfrentan diariamente los sectores medios.
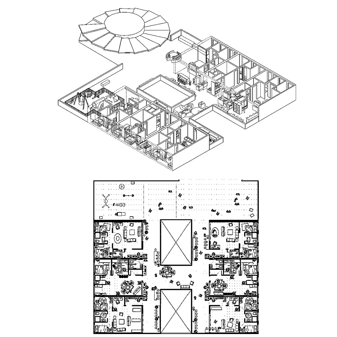
El taller ARQ510 “ALTERACIONES” investigó y proyectó en 8 comunas de la región Metropolitana: San Joaquín, Pedro Aguirre Cerda, Cerrillos, Estación Central, Lo Prado, Quinta Normal, Independencia y Recoleta, todas estas emplazadas en el pericentro de la ciudad de Santiago. La investigación se funda en abrir posibilidades para la redefinición y expansión de la vivienda, a través de un catastro de tipologías habitacionales que fueron modificadas en el tiempo. Se constituye un inventario de programas (no considerados) que han subvertido los usos tradicionales de la vivienda y su tipología estándar, estas desarrolladas en las últimas décadas y replicadas hasta el día de hoy.
Los estudiantes operaron buscando la reprogramación y expansión de los espacios privados, comunes y públicos de la vivienda, extremando las posibilidades de superposición programática. Incluso superando las pretensiones del propio arquitecto y su proyecto, especularon sobre la promiscuidad de los espacios y la resistencia de usos y situaciones generadas por la diversidad de habitantes (aunque la realidad superó la especulación). Del mismo modo se propuso una fricción constante entre el proyecto, las problemáticas y las necesidades para el funcionamiento de espacios difusos en la vivienda y su contexto inmediato, barrial y comunal. De esta manera se forja la aproximación al Condensador Social, una propuesta tipológica en la cual se establecen criterios de necesidades reales en contraposición a las aspiraciones propuestas por el mercado, desarrollando estrategias arquitectónicas que alteran la concepción tradicional de un proyecto habitacional, dejando atrás toda convencionalidad se intenta responder a la vida contemporánea de la clase media chilena.
Are the domestic needs of the middle class forcing the redefinition and expansion of housing, placing the typology and its context in crisis?
What could the architectural design strategies conceive as a new definition of living for the contemporary Chilean middle class?
Property, community, rights, occupation, work, health, childhood, roots, and belonging are some of the problems and needs that the middle sectors face daily.
“ALTERACIONES” studio investigated and developed a proposal for 8 boroughs of the Metropolitan region: San Joaquín, Pedro Aguirre Cerda, Cerrillos, Central Station, Lo Prado, Quinta Normal, Independencia, and Recoleta, all of these located in the center of the city of Santiago. Research is based on opening possibilities for the redefinition and expansion of housing, through a survey of housing typologies that were modified over time. An inventory of programs -not originally considered- that subverted the traditional uses of housing and its standard typology, these new ways of occupying space developed in the last decades and are replicated to this day.
Students operated seeking the reprogramming and expansion of the private, common, and public spaces of the house, maximizing the possibilities of programmatic overlap. Even surpassing the pretensions of the architect himself and his project, students speculated on the promiscuity of these spaces and the ongoing uses and situations brought by the diversity of its inhabitants – although reality exceeded speculation. In the same way, constant friction was proposed between the building, the problems and the needs for the functioning of diffuse spaces in the house, and its immediate neighborhood and communal context. In this way, the approach to the Social Condenser is forged, a typological proposal in which criteria based on real needs is established in contrast to the aspirations proposed by the housing market, developing architectural strategies that alter the traditional conception of a housing project. Leaving behind all conventionality an attempt is made to respond to the contemporary life of the Chilean middle class.














